|
Voltaje |
110 VAC 20 AMP servicio min. |
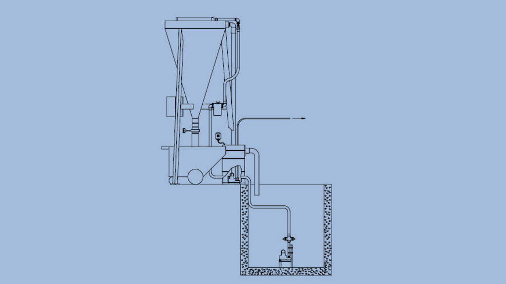
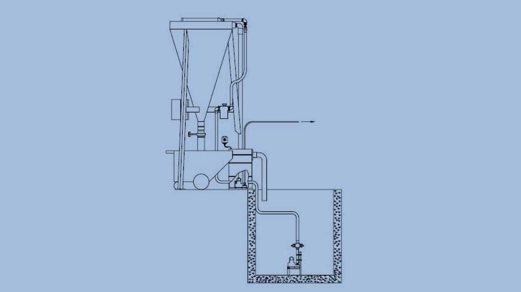
| Bomba de lodo | 4/10 HP submergible |
| Bomba de agua limpia | 3/10 HP submergible |
| Altura de pie | 11 pies |
| Espacio necesario | 10 pies x10 pies |
| Capacidad del foso | 60/6 x 4 pies (500 galones) |
| Peso total | 300 libras |








